Skip to content
Inicio
Quiénes Somos
Proyectos
Contacto
Main Menu
Inicio
Quiénes Somos
Proyectos
Contacto
Take Action
Take Action
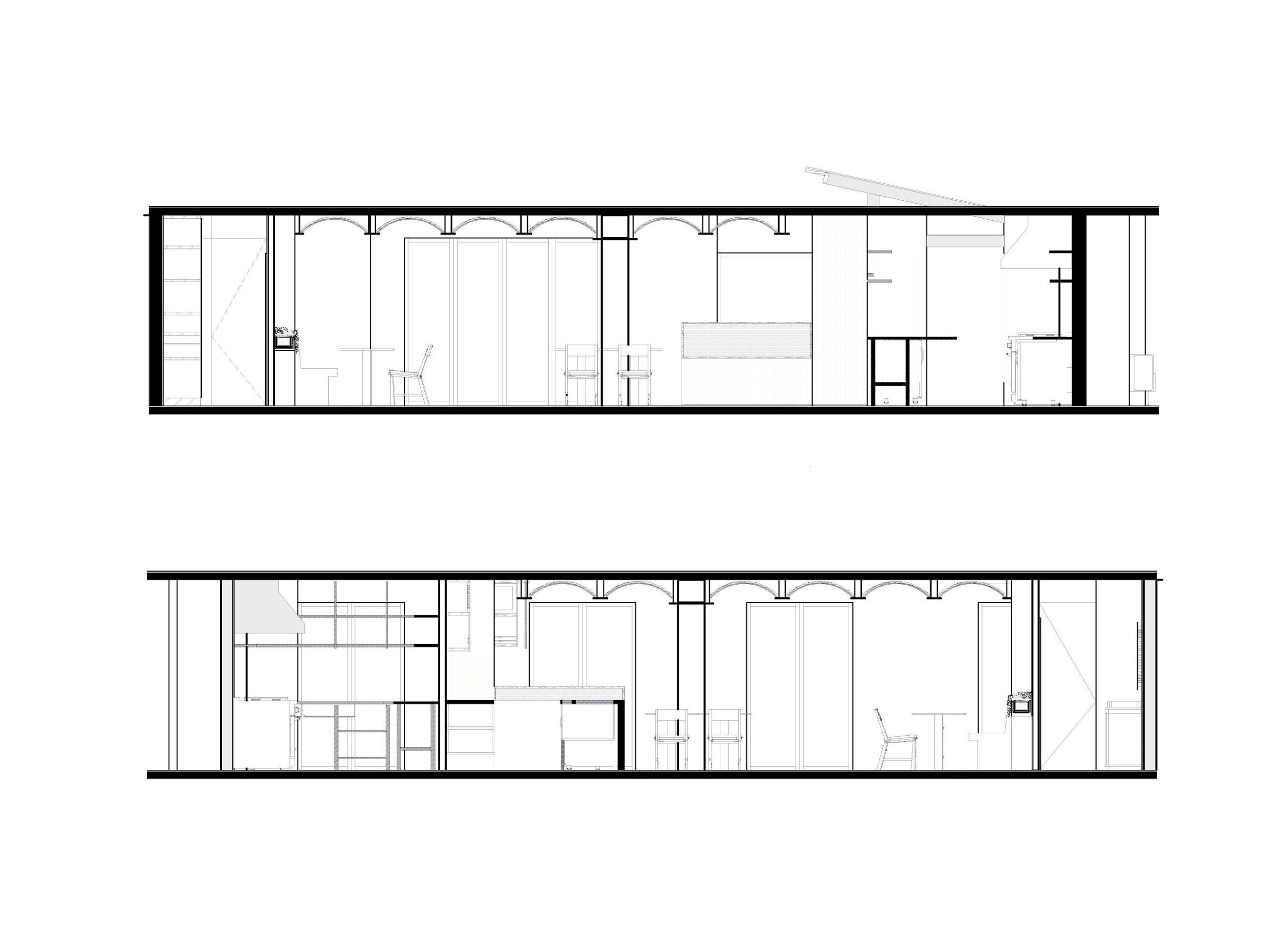
CASA ELINA
Mazatlán Sinaloa México 2024 Diseño integral
REGRESAR A PROYECTOS